|  随州千古装饰携90后小夫妻40㎡蜗居打造成豪宅! 
  
 不是大户型才能装修出豪宅的感觉,幸福程度与房子大小无关,不要小瞧小户型,看90后小夫妻如何将40平蜗居打造成豪宅范儿,精致的细节装修是重点,不仅隐藏了小户型的劣势,还让人体会到生活的高品质,生活并非仅仅是为了生存。小户型也有豪宅feel!  
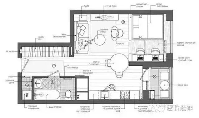
 面积: 40平米 风格:清新简约范儿 需求:房型虽小,生活要精致 常住人员: 夫妻二人  
  
 通过一个过道,进入房子的主要生活区,虽然户型比较小,但是巧用了隔断以及地毯的装饰来进行区域的划分,客厅,餐厅,厨房,工作间整体风格清新简单但是功能性十足!  
  
 卧室和工作间在一个区域,整体用了榻榻米的装修格局,还做了整体收纳柜,和客厅有了明显的的划分,利用资源做了抽屉式的收纳柜,对小户型来说功能性很强,工作空间只需要一个安静的角落,并且阳光充足很惬意!  
 简单的书桌,足够两个人使用,并且书桌两侧都有足够的收纳空间,两个不规则放置的吊灯加上壁画简约而不简单!墙面上的插座个数和高度安装的也很合理。  
  
 榻榻米的功能性很强,在中间还做了可以升降的桌子,平常还可以喝喝茶,看看书,上上网,生活本该享受的嘛!  
 床头柜玄机很大,不仅可以做为收纳,床头还安置了足够的插座,还有两展小台灯,睡觉之前还能读读书!  
  
 时尚布艺沙发、一个单人躺椅、不规则图案的背景墙、简单的壁画、一块黑白色经典条纹地毯、一个小圆桌、角落的置物架,加上一个简单现代的时尚吊灯,一切浑然天成,清新简洁现代风格!  
  
 厨房区域的背景墙用四色的瓷砖进行不规则拼贴,配上三个壁柜和收纳墙架整体效果现代感十足。  
  
  
 厨房边角的美食区,热爱生活的人肯定是热爱美食的,一个圆桌加两把木椅,餐桌旁还有黑板墙面设计,可以收纳可以记录生活,简单的生活从美食开始。  
  
  
 阳台休闲区,不是为了晾衣服那么无趣,墙面都做了置物架,可以放书,可以放绿植,再置办黄色的椅子和木质圆桌,下午茶多惬意啊,傍晚两人还能在阳台品酒看星星。  
  
 在门口不大的储物间改造成了洗衣间,上面做了置物架用来收纳杂物,下面刚好放置洗衣机,空间最大化利用。  
  
 对于空间不大的卫生间往往简单却很精致,不仅做了干湿分离的设计,墙面植物架还有毛巾架都对不大的空间进行了优化处理。小编寄语:随州千古装饰设计有限公司,真正为客户打造省时、省力、省心、省钱的装修体系。 让客户轻轻松松装房,明明白白消费。我们郑重承诺,绝对会让您家里的每一平米都与众不同!!!
 咨询热线:0722-7166305  15072955559   微信号:15072955559
 地址:明珠路22号
 
 
 
 
 |